174 800 Ft
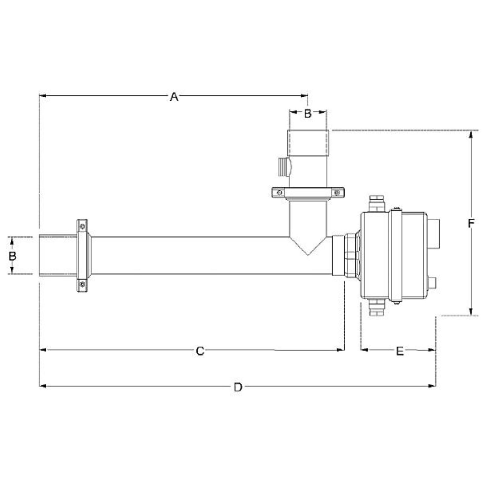
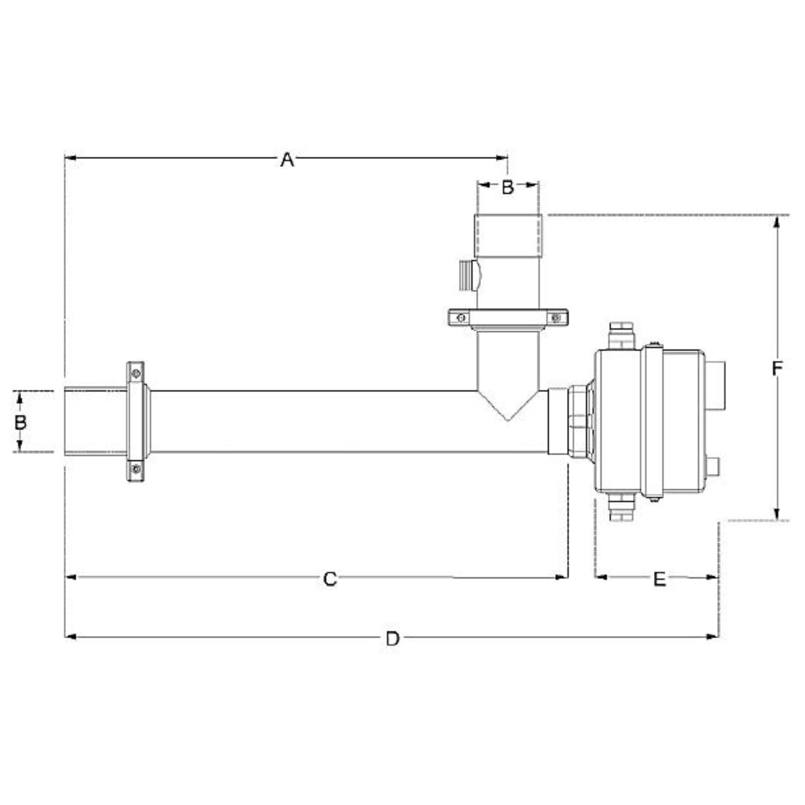
EVO D-EWT fűtőpatron
Elektromos hőcserélők a D-EWT Evo termékcsaládból, 0-40 °C-os szabályzó termosztáttal, 55 °C-os biztonsági termosztáttal, lassú víz elleni védelemre szolgáló áramlásszabályozóval és Incoloy 825-ből készült, rendkívül korrózióálló fűtőrudakkal. Rendkívül sokoldalúan alkalmazhatók – úszómedencék, pezsgőfürdők és hasonló létesítmények fűtésére.
Kifejezetten a vízkörforgáshoz való csatlakoztatásukhoz két új és innovatív, D50-es ragasztó aljzatot fejlesztettek ki. Az áramlásszabályozót a két ragasztóaljzat egyikébe kell becsavarni. Így az áramlásszabályozó a hőcserélő be- vagy kijáratánál helyezhető el. További előnye, hogy karbantartás vagy javítás során az áramlásszabályozót nem kell eltávolítani, és a csővezetékben védve van. Tökéletesen működnek állandó és mobil létesítményekben.
Tulajdonságai:
– Levegő fűtésére – SPA rendszerekhez
– AISI304 rozsdamentes acélból készül – hosszú élettartam, magas minőség
– Kompakt kis méret, egyszerű szerelés
– Állítható termosztát 30-90°C
– Gumikuplungos csatlakozás 2” x Ø60mm



