381 100 Ft
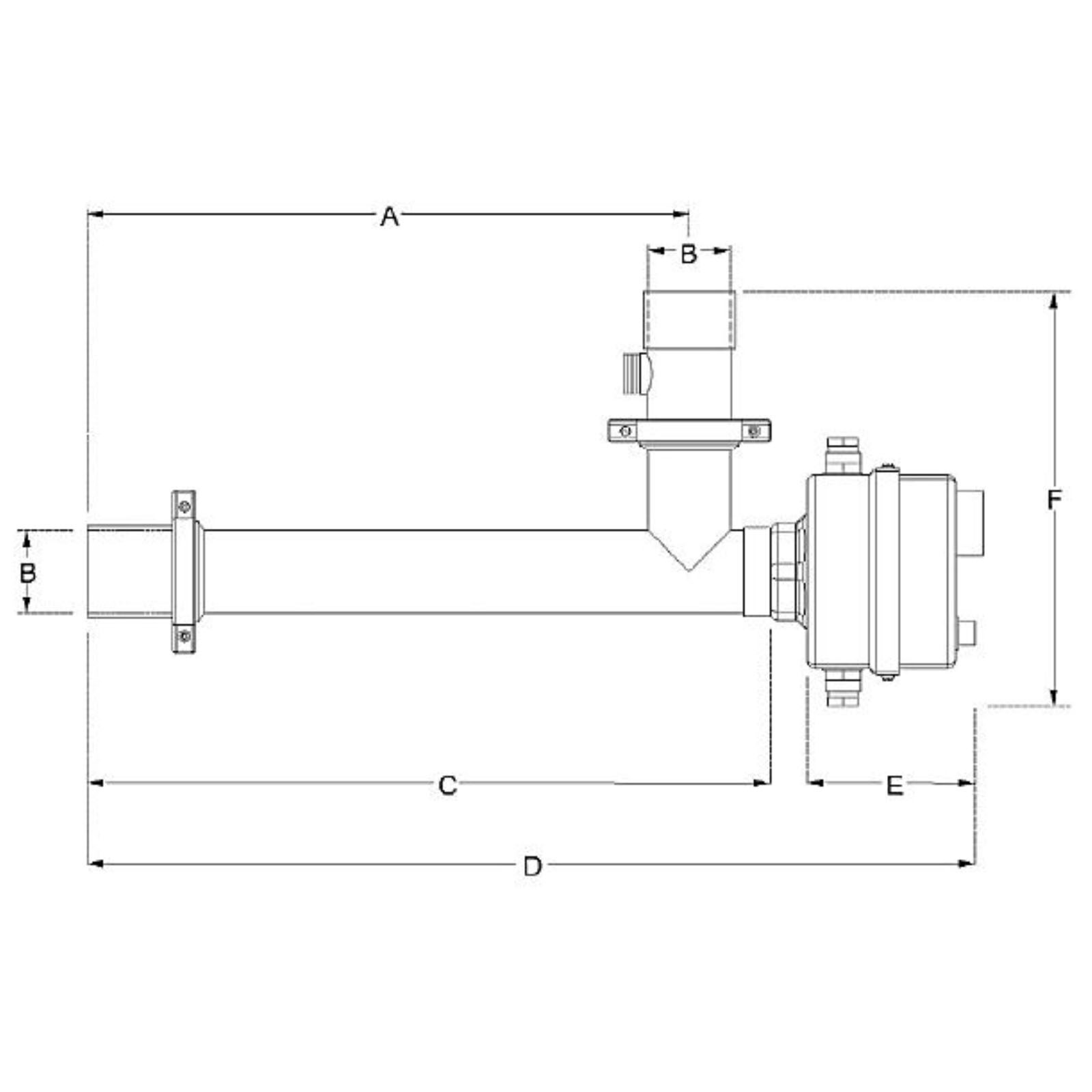
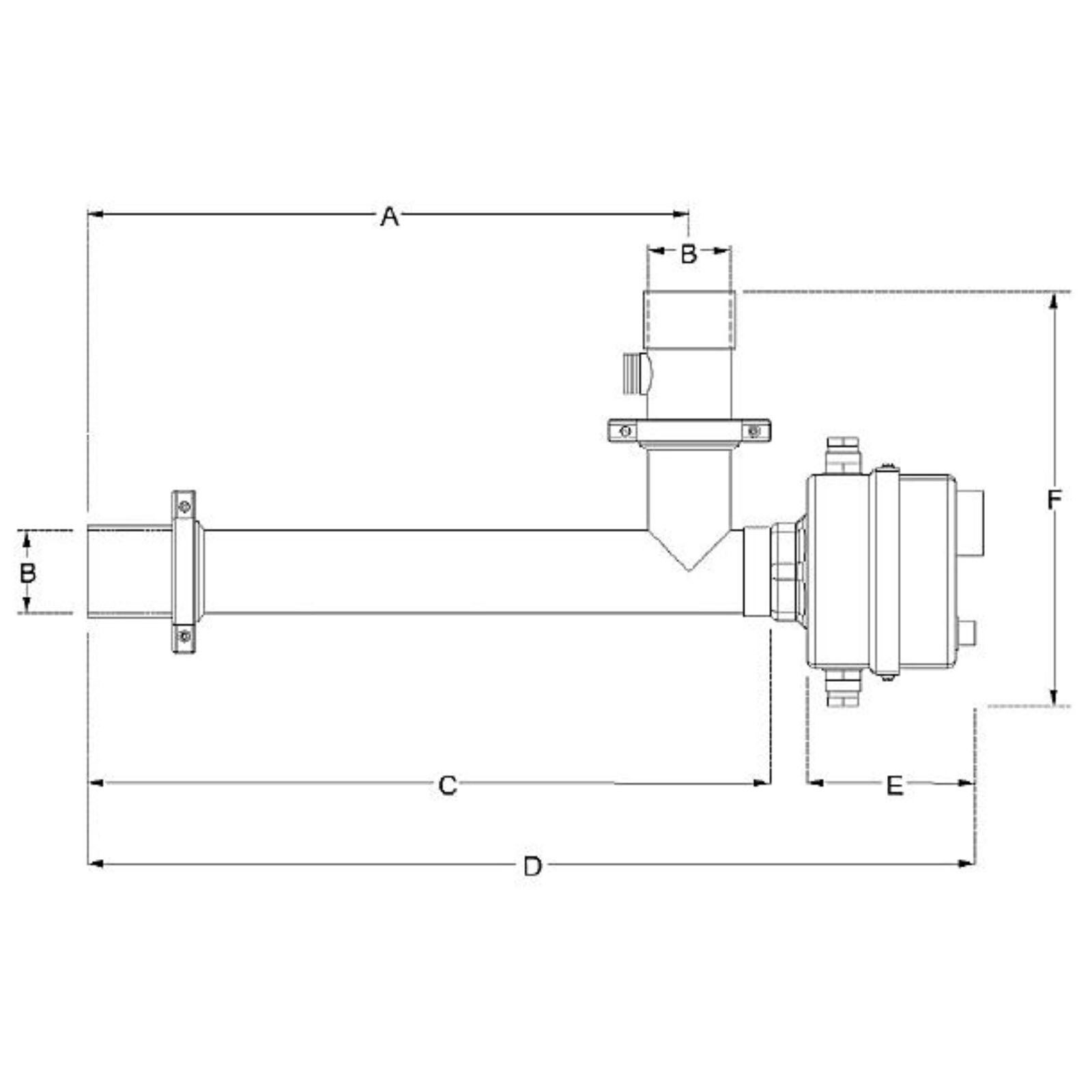
EVO-Titán D-EWT fűtőpatron
Elektromos hőcserélők a D-EWT EVO termékcsaládból, titán ötvözetű házzal és titán fűtőszálakkal. 0-40 °C-os szabályzó termosztáttal, 55 °C-os biztonsági termosztáttal, lassú víz elleni védelemre szolgáló áramlásszabályozóval, rendkívül korrózióálló fűtőrudakkal, rendkívül sokoldalúan alkalmazhatók – úszómedencék, pezsgőfürdők és hasonló létesítmények fűtésére.
Kifejezetten a vízkörforgáshoz való csatlakoztatásukhoz két új és innovatív, D50-es ragasztó aljzatot fejlesztettek ki. Az áramlásszabályozót a két ragasztóaljzat egyikébe kell becsavarni. Így az áramlásszabályozó a hőcserélő be- vagy kijáratánál helyezhető el. További előnye, hogy karbantartás vagy javítás során az áramlásszabályozót nem kell eltávolítani, és a csővezetékben védve van. Tökéletesen működnek állandó és mobil létesítményekben.
Tulajdonságai:
– Titán ötvözetű ház
– Titán fűzőszálak
– Kettős védelem – Túlmelegedés elleni biztosítás és külső áramlásérzékelő, mely alacsony áramlás esetén lekapcsolja a berendezést
– Termosztát 0-40°C; biztonsági termosztát 55°C
– D50 mm ragasztható csatlakozással szerelve



