159 300 Ft
Neo D-EWT fűtőpatron
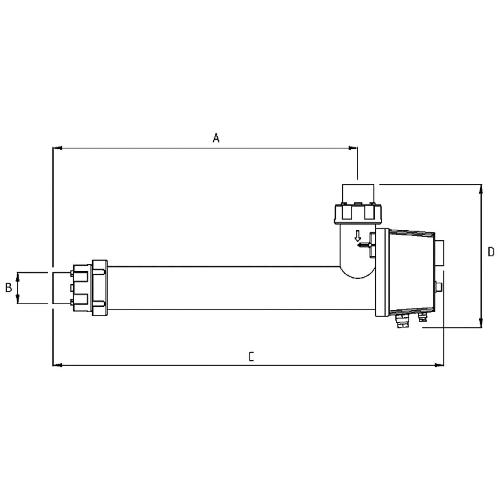
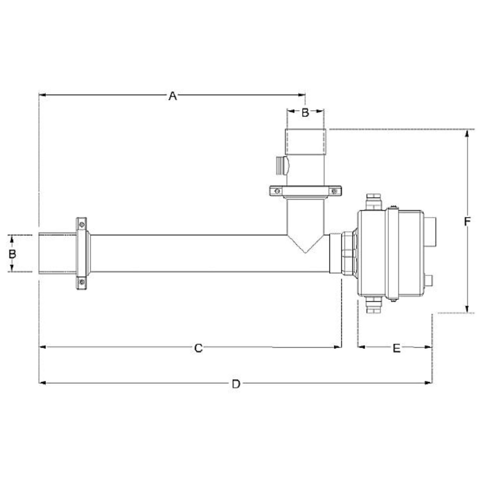
Elektromos hőcserélők a D-EWT Neo termékcsaládból, nem gyulékony műanyag házzal, nyomásálló burkolattal, a fűtőelemek Incoloy 825 anyagbó készülnek. 0-40 °C-os szabályzó termosztáttal, 55 °C-os biztonsági termosztáttal, lassú víz elleni védelemre szolgáló áramlásszabályozóval, rendkívül korrózióálló fűtőrudakkal, rendkívül sokoldalúan alkalmazhatók – úszómedencék, pezsgőfürdők és hasonló létesítmények fűtésére.
Kifejezetten a vízkörforgáshoz való csatlakoztatásukhoz két új és innovatív, D50-es ragasztó aljzatot fejlesztettek ki. Az áramlásszabályozót a két ragasztóaljzat egyikébe kell becsavarni. Így az áramlásszabályozó a hőcserélő be- vagy kijáratánál helyezhető el. További előnye, hogy karbantartás vagy javítás során az áramlásszabályozót nem kell eltávolítani, és a csővezetékben védve van. Tökéletesen működnek állandó és mobil létesítményekben.
Tulajdonságai:
– Nem gyúlékony műanyag ház, nyomásálló burkolat
– A fűtőelemek Incoloy 825 anyagból készülnek
– Kettős védelem – Túlmelegedés elleni biztosítás és külső áramlásérzékelő, mely alacsony áramlás esetén lekapcsolja a berendezést
– Termosztát 0-40°C; biztonsági termosztát 55°C
– D50 mm ragasztható csatlakozással szerelve



